118 Broadway
Long Branch

118 Broadway Long Branch - Affordability Units

Welcome to 118 Broadway Long Branch – Affordability Units in Long Branch, New Jersey. This property will feature 30 one-, two-  and three-bedroom apartments designed for very-low, low, and moderate income households. These apartments have been set aside to help meet Long Branch’s fair-share obligation in addressing New Jersey’s growing need for affordable housing.

Applicants must qualify based on annual gross household income. Minimum income, maximum income, credit standards, and additional eligibility requirements will apply.

A random selection will be conducted on August 1, 2026, for all preliminary applications received between April 1, 2026, and July 31, 2026, at 11:59 PM.

 
Monthly Rent - Income Limits

Monthly Rates

Bedrooms Income Category Monthly Rate Minimum Income
1 Bedroom Very Low Income $489/mo $25,619
1 Bedroom Low Income $984/mo $42,593
1 Bedroom Moderate Income $1,257/mo $51,943
2 Bedrooms Very Low Income $565/mo $30,778
2 Bedrooms Low Income $1,159/mo $51,148
2 Bedrooms Moderate Income $1,485/mo $62,331
3 Bedrooms Very Low Income $642/mo $35,559
3 Bedrooms Low Income $1,328/mo $59,088
3 Bedrooms Moderate Income $1,705/mo $72,000

Income Limits

Maximum Gross Annual Income Limits for Monmouth County, NJ

Number in Household Very Low Income Low Income Moderate Income
1 $28,290 $47,150 $75,440
2 $32,310 $53,850 $86,160
3 $36,360 $60,600 $96,960
4 $40,380 $67,300 $107,680
5 $43,620 $72,700 $116,320
6 $46,860 $78,100 $124,960

Income limits are subject to change without notice

LVT floors
Washer/dryer in unit
Dishwasher
Modern cabinetry
Quartz Countertops
Porcelain Backsplash
Ample closet space

Pool
Teen Game Room
Clubroom
Fitness Center
Fitness on Demand / Yoga Room
Spa with treatment room and sauna
Pet Spa
Social Lounge
Coworking Lounge
Kids Playroom
Retail Coffee Lounge
Tasting Room
Theater Room
Rootop Amenity Deck

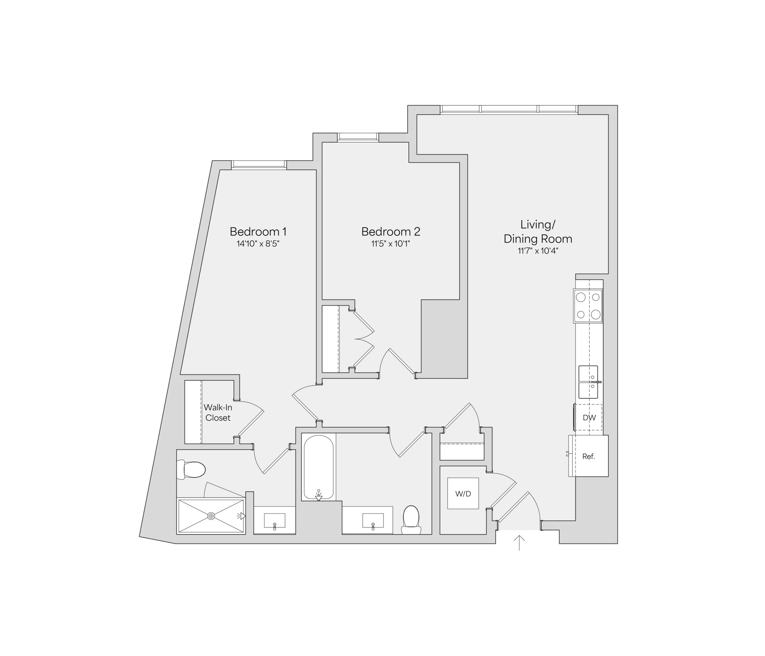
1 Bedroom Floor Plans

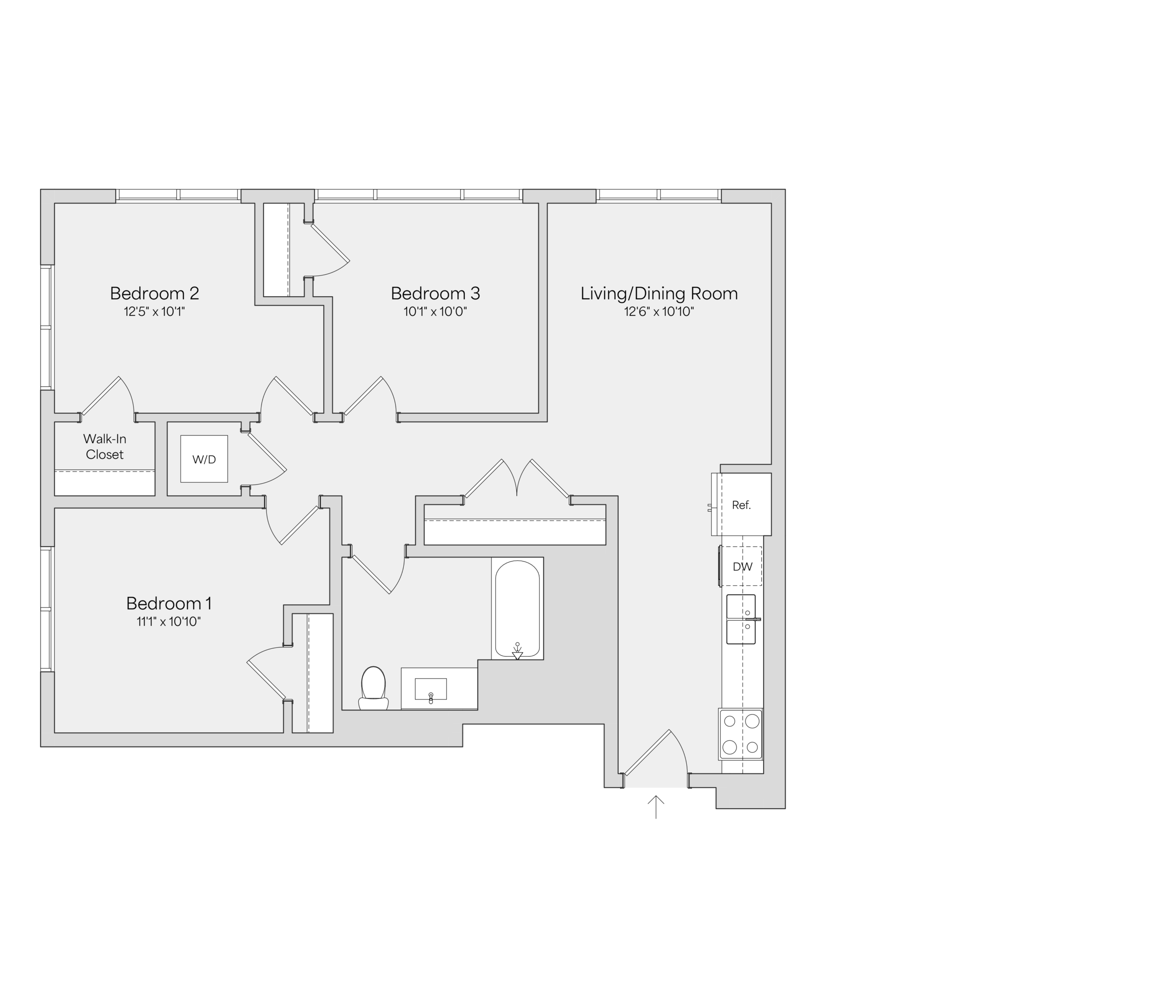
2 Bedroom Floor Plans

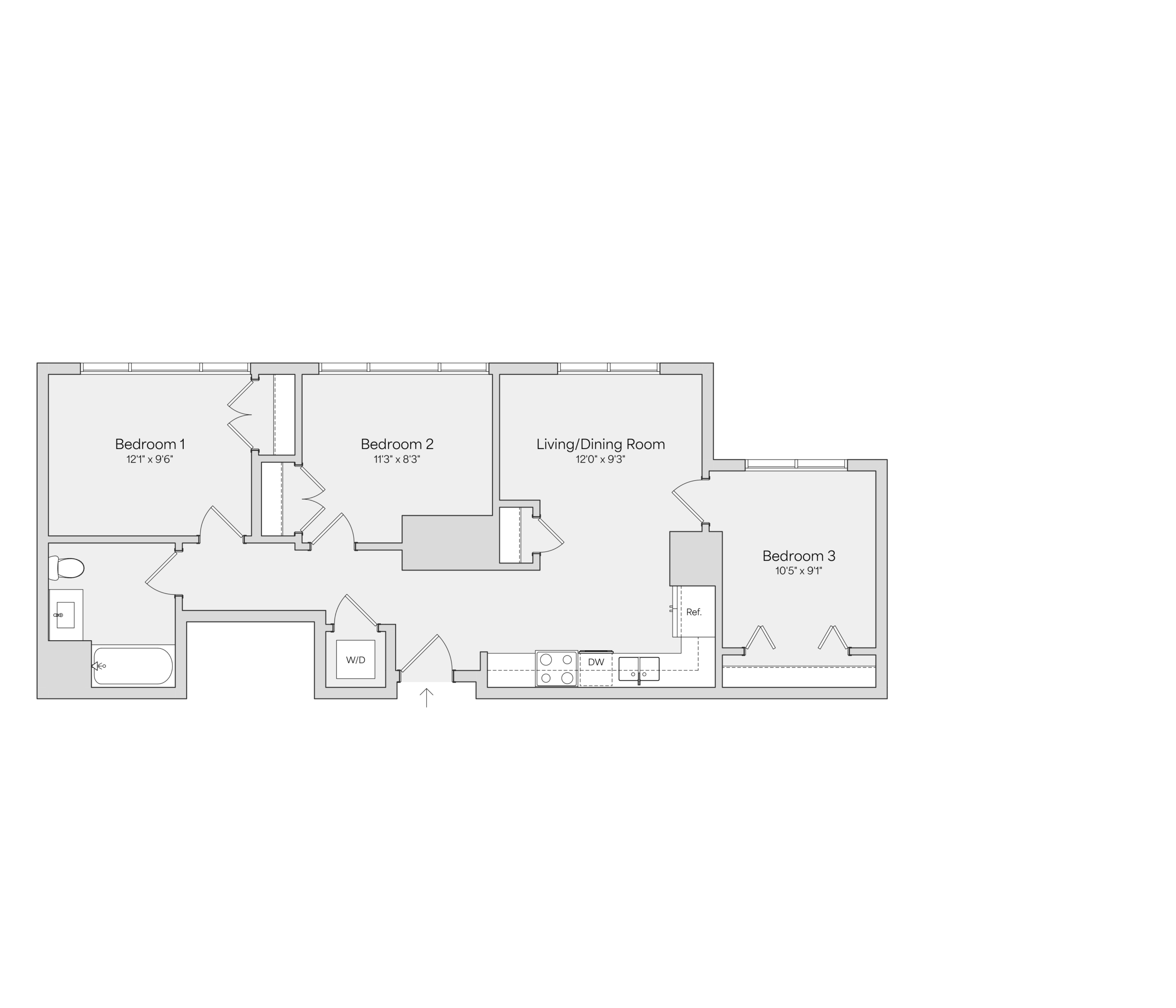
3 Bedroom Floor Plans

NOTE: Renderings, floor plans, finishes, views, and square footage are for reference only; actual layouts, dimensions, features, and details may vary.

If you are interested in applying for a Livana Lower Broadway affordable home, you may complete the application online (see link to “Preliminary Application” below).

When an affordable home becomes available, we will contact a limited number of applicants who are on our list for the size and income category of the home that will be available.

A final application and documentation to verify identity and income will be required and processed at that time. Since final applications are only processed when a specific affordable home becomes available, we cannot accommodate applicants’ choice of floor plan.

The number of units at each pricing tier is limited, and not all properties offer units at every pricing tier. Prices and conditions are subject to change without notice. Minimum and maximum incomes will apply. To be eligible for this affordable housing program, the gross annual income of your household cannot exceed the program limits listed, above. The maximum income is based on the total number of persons who will reside in an affordable home. Maximum Incomes are adjusted annually and are subject to change without notice. The maximum rental rates and affordable housing restrictions are governed by this affordable housing program.

Utilities

Utilities are not included and are paid by the tenant.

Parking

Parking is included.

All other terms and conditions of the lease are set forth by the landlord and their agents.